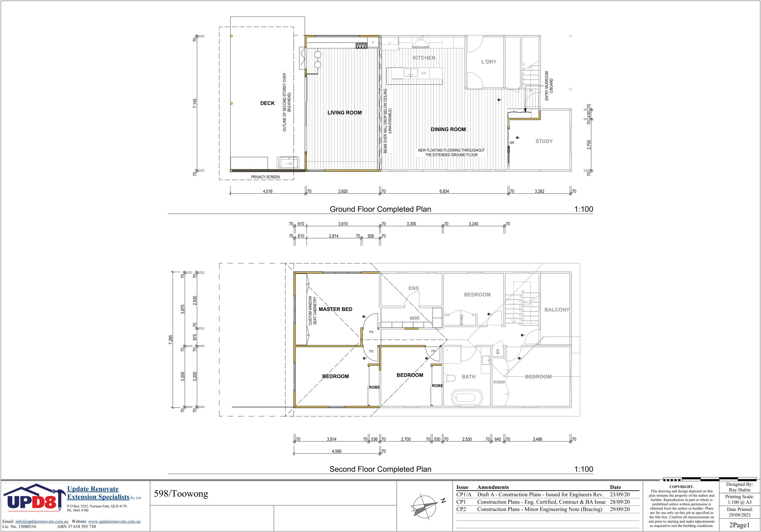
This Brisbane building design project was for a 58m2 ground floor extension across the full width of the back of the existing home for an extended kitchen open plan living and dining room opening onto a new rear deck through a set of large stacker sliding doors. The design also incorporated a 34m2 second storey extension for a new master bedroom and nursery. The existing narrow walk in wardrobe was refitted with custom cabinetry with additional clothes storage incorporated in feature window seat cabinetry.
The existing ground floor study was also altered to provide custom mudroom cabinetry beside the front entry and a new built in desk to suit working from the home office.
Builder: Update Renovate Extension Specialists Pty Ltd



















